Deklaracja dostępności Dolnośląskiego Ośrodka Doskonalenia Nauczycieli we Wrocławiu
Dolnośląski Ośrodek Doskonalenia Nauczycieli we Wrocławiu zobowiązuje się zapewnić dostępność swojej strony internetowej zgodnie z przepisami ustawy z dnia 4 kwietnia 2019 r. o dostępności cyfrowej stron internetowych i aplikacji mobilnych podmiotów publicznych. Oświadczenie w sprawie dostępności ma zastosowanie do strony internetowej www.dodn.dolnyslask.pl
Status pod względem zgodności z ustawą
Strona internetowa jest częściowo zgodna z ustawą o dostępności cyfrowej stron internetowych i aplikacji mobilnych podmiotów publicznych z powodu niezgodności lub wyłączeń wymienionych poniżej. Zapewnienie dostępności niosłoby za sobą nadmierne obciążenia dla podmiotu publicznego.
Zobacz: Ocena możliwości zapewnienia dostępności strony internetowej
Treści niedostępne
Wyłączenia
Przygotowanie deklaracji w sprawie dostępności
Deklarację sporządzono na podstawie samooceny przeprowadzonej przez podmiot publiczny.
Informacje zwrotne i dane kontaktowe
Każdy ma prawo:
Żądanie musi zawierać:
Rozpatrzenie zgłoszenia powinno nastąpić niezwłocznie, najpóźniej w ciągu 7 dni. Jeśli w tym terminie zapewnienie dostępności albo zapewnienie dostępu w alternatywnej formie nie jest możliwe, powinno nastąpić najdalej w ciągu 2 miesięcy od daty zgłoszenia.
Skargi i odwołania
Na niedotrzymanie tych terminów oraz na odmowę realizacji żądania można złożyć skargę do organu nadzorującego pocztą lub drogą elektroniczną na adres:
Skargę można złożyć również do Rzecznika Praw Obywatelskich.
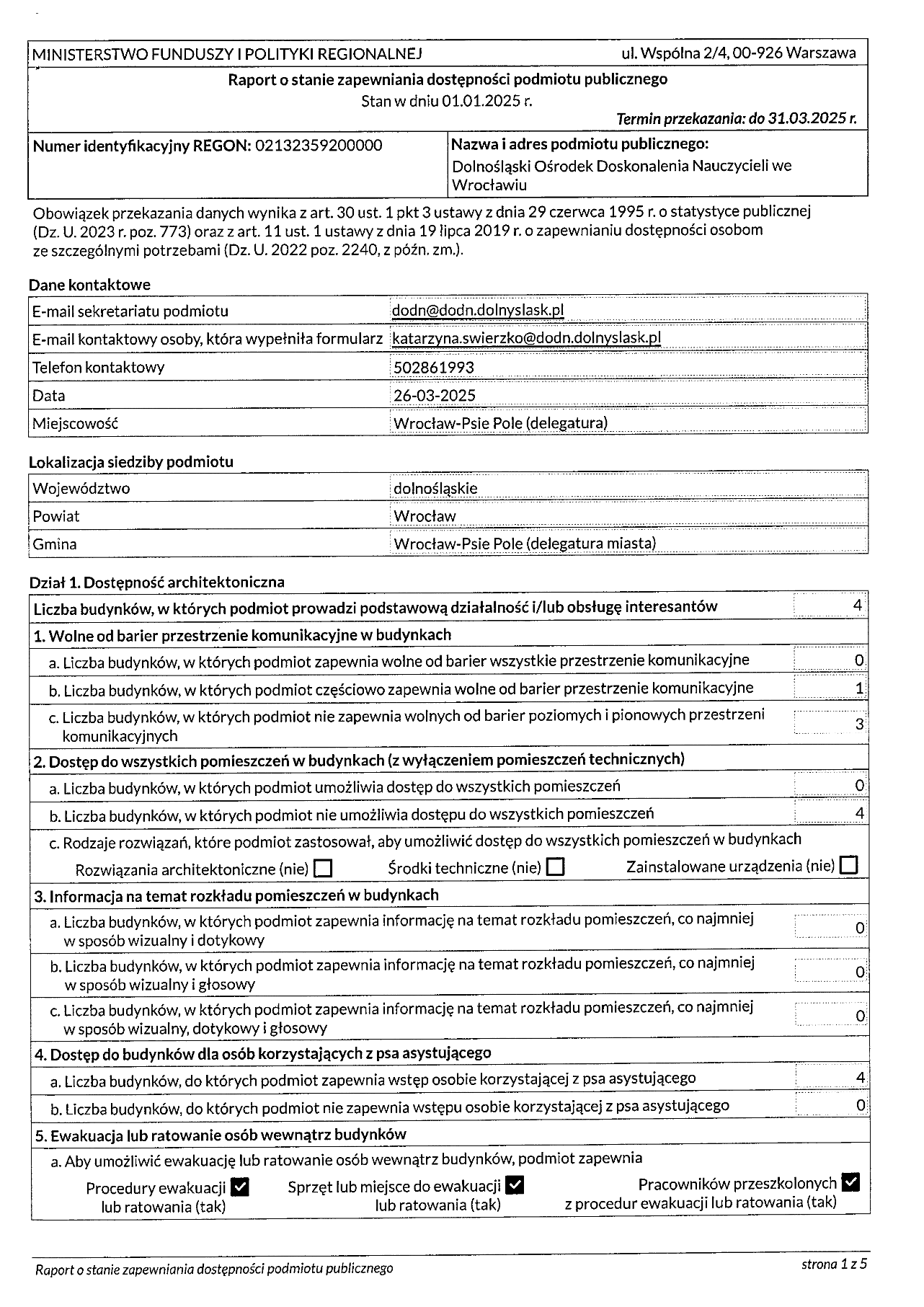
Opis wejścia do budynku.
Dojazd do budynku Dolnośląskiego Ośrodka Doskonalenia Nauczycieli we Wrocławiu znajduje się od ul. Trzebnickiej oraz ul. Kleczkowskiej.
Wejście główne do budynku znajduje się od ul. Trzebnickiej 42, natomiast drugie od strony podwórza ul. Kleczkowskiej (brama wjazdowa).
OPIS DOSTĘPNOŚCI DO POMIESZCZEŃ DODN
Pomieszczenia DODN mieszczą się na parterze i pierwszym piętrze. BUDYNEK NIE POSIADA WINDY.
Budynek posiada szerokie klatki schodowe i ogólnodostępne korytarze. Schody wyposażone są w poręcze.
Z uwagi na utrudniony dostęp architektoniczny dla osób z niepełnosprawnością ruchową obsługa osoby z niepełnosprawnością ruchową realizowana jest na parterze budynku.
Pomieszczenia znajdujące się na parterze:
– Sekretariat – pokój nr 18
– Wicedyrektor – pokój nr 8
– Dział księgowości – pokój nr 9, 11
– Biuro projektów – pokój nr 1
– Kadry, płace – pokój nr 10
– Informatyk – pokój nr 13
– Pokój konsultantów – pokój nr 12, 15, 16
– Sala szkoleniowa – pokój nr 17
– Sala konferencyjna – pokój nr 6
Pomieszczenia na pierwszym piętrze:
– Wicedyrektor – pokój nr 114
– Dział Organizacji Szkoleń – pokój nr 113
– Pokój konsultantów – pokój nr 101, 104, 107
– Sala szkoleniowa – pokój nr 102, 103, 105, 106
– Pomieszczenie socjalne – pokój nr 108
– Biuro projektu KPO – pokój nr 109
Opis wejścia do budynku.
Wejście główne do budynku znajduje się od ul. Rynek 6,
Drugie wejście od strony podwórza przy ul. Rycerskiej.
Trzecie wejście (oficyna) od strony podwórza przy ul. Rycerskiej.
Do budynku wejście z poziomu chodnika do holu obustronnie zamykanego, którego druga strona wychodzi na podwórze od ul. Rycerskiej. W holu 1 stopień prowadzi do schodów wejściowych na parter.
Schody wejściowe – 8 stopni. Na parterze znajdują się główne drzwi do budynku, pomieszczenie portierni oraz stół i krzesła dla petentów. Na portierni można uzyskać informację i poprosić o kontakt z pracownikami merytorycznymi DODN. Po wejściu głównymi drzwiami na parterze znajdują się schody (trzy zabiegi po 9, 9 i 7 stopni) prowadzące na I piętro, na którym znajduje się większość pomieszczeń Filii DODN w Wałbrzychu. Na schodach wejściowych oraz klatce schodowej brak jest udogodnień dla osób z niepełnosprawnością ruchową.
Większość pomieszczeń Filii DODN w Wałbrzychu mieści się na pierwszym piętrze. BUDYNEK NIE POSIADA WINDY. Budynek posiada szerokie klatki schodowe i ogólnodostępne korytarze. Schody wyposażone są w poręcze. Toalety bez wyposażenia dla osób niepełnosprawnych ruchowo.
Z uwagi na utrudniony dostęp architektoniczny dla osób z niepełnosprawnością ruchową obsługa osoby z niepełnosprawnością ruchową realizowana jest w holu budynku.
Pomieszczenia na parterze:
– Izolatorium– pokój nr 02
– Mała sala dydaktyczna – pokój nr 03
Pomieszczenia na pierwszym piętrze:
– Kierownik – pokój nr 12
– Sekretariat/Dział Organizacji Szkoleń – pokój nr 11
– Pokój konsultantów – pokój nr 10, 07
– Pokój doradców metodycznych – pokój nr 08
– Sala konferencyjna – pokój nr 13
– Sala dydaktyczna – pokój nr 09
– Toaleta damska
– Toaleta męska
Pomieszczenia w oficynie:
– Korytarz – stolik, krzesła
– Pokój doradców metodycznych– pokój nr 01 i 02
– Toaleta
Możliwość wjazdu osób z niepełnosprawnością ruchową na parter oficyny umożliwia obsługę klientów – korytarz.
Opis wejścia do budynku.
Dojazd do budynku Dolnośląskiego Ośrodka Doskonalenia Nauczycieli we Wrocławiu Filia w Jeleniej Górze znajduje się od ul. Kilińskiego.
Wejście główne do budynku znajduje się od ul. 1 Maja 43.
Opis dostępności do pomieszczeń DODN
Pomieszczenia DODN mieszczą się na parterze, pierwszym piętrze i drugim piętrze. BUDYNEK NIE POSIADA WINDY.
Budynek posiada szerokie klatki schodowe i ogólnodostępne korytarze. Schody wyposażone są w poręcze.
Z uwagi na utrudniony dostęp architektoniczny dla osób z niepełnosprawnością ruchową obsługa osoby z niepełnosprawnością ruchową realizowana jest na parterze budynku.
Piwnica:
– garaż nr 1, 1a, 2, 3, 4
– garaż nr 5 CAR-FIX Bartosz Michalski
– Kotłownia
– Archiwum
Pomieszczenia znajdujące się na parterze:
– Biblioteka pedagogiczna – pokój nr 2, 12
– sala konferencyjna – nr 5
– Pokój socjalny
– pokój nr 7
– Sala szkoleniowa – pokój nr 6
Pomieszczenia na pierwszym piętrze:
– Sekretariat – pokój 102
– Dział Organizacji Szkoleń – pokój nr 103
– Pokój kierownika – nr 101
– Sala szkoleniowa – pokój nr 104, 105, 106, 108, 109, 113, 114, 115, 116
– doradca metodyczny – pokój 107
– pomieszczenie – nr 111 i 112
Pomieszczenia na drugim piętrze:
– pokoje konsultantów – nr 204, 205, 206, 207, 212, 214, 215
– Archiwum Zakładowe – pokój nr 213
– Sala konferencyjna – nr 208
– Administracja – pokój nr 216
– pomieszczenie biurowe – pokój nr 201
– Atomistyka – pokój 202
– Ośrodek Szkolenia Technicznego – pokój nr 218
– pomieszczenia biurowe – pokój nr 219, 220
– archiwum atomistyki – nr 221
Opis wejścia do budynku.
Dojazd do budynku Dolnośląskiego Ośrodka Doskonalenia Nauczycieli we Wrocławiu Filia w Legnicy znajduje się od pl. Zamkowy 1 – od strony parkingu.
Wejście główne do budynku znajduje się od pl. Zamkowy 1.
Opis dostępności do pomieszczeń
Pomieszczenia DODN Filia w Legnicy mieszczą się na drugim piętrze. Budynek posiada windę.
Budynek posiada szerokie klatki schodowe i ogólnodostępne korytarze. Schody wyposażone są w poręcze.
Obsługa osoby z niepełnosprawnością ruchową realizowana jest na drugim piętrze budynku w siedzibie DODN Filia w Legnicy.
Pomieszczenia znajdujące się na drugim piętrze:
– Sekretariat – pokój nr 210
– Kierownik Filii – pokój nr 210A
– Dział Organizacji Szkoleń – pokój nr 207
– Pokój konsultantów – pokój nr 207A, 209
– Sala komputerowa – pokój nr 208
– Informatyk, Inspektor Ochrony Danych – pokój nr 211
– Pokój metodyków – pokój nr 215,
– Sala szkoleniowa – pokój nr 216, 217
Osoba z niepełnosprawnością może wejść z psem asystującym do budynku DODN.
Osoba z niepełnosprawnością zamierzająca skorzystać z powyższego prawa zobowiązana jest do wyposażenia psa asystującego w uprząż, na której widoczny jest napis „Pies asystujący” oraz do posiadania certyfikatu potwierdzającego status danego psa asystującego, a także zaświadczenia o wykonaniu wymaganych szczepień weterynaryjnych. Osoba z niepełnosprawnością nie ma obowiązku zakładania psu asystującemu kagańca oraz prowadzenia go na smyczy.
Bezpośrednio przy wejściu głównym do budynku (oznaczonym literą A)
od ul. Trzebnickiej 42 na chodniku wydzielono dwa miejsca parkingowe dla pojazdów dla osób z niepełnosprawnością.
Realizując zapisy Ustawy z dnia 19 sierpnia 2011 r. o języku migowym i innych środkach komunikowania się (Dz. U. z 2017 r. poz. 1824) informujemy, że Dolnośląski Ośrodek Doskonalenia Nauczycieli we Wrocławiu zapewnia osobom mającym trudności w komunikowaniu się korzystanie:
Aby skorzystać z usług Dolnośląskiego Ośrodka Doskonalenia Nauczycieli we Wrocławiu, ze wskazaniem wybranej metody komunikowania się – świadczenia usług tłumacza:
należy, co najmniej na 3 dni robocze przed tym zdarzeniem wypełnić link do wniosku i po wypełnieniu wybrać jedną z poniższych opcji:
W przypadku, gdy wnioskowana sprawa nie leży w kompetencjach Dyrektora Dolnośląskiego Ośrodka Doskonalenia Nauczycieli we Wrocławiu, wniosek zostanie niezwłocznie przesłany do właściwego organu, o czym powiadomi wnioskodawcę.
W przypadku braku możliwości realizacji świadczenia, Dolnośląski Ośrodek Doskonalenia Nauczycieli we Wrocławiu zawiadomi wnioskodawcę o tym fakcie, wyznaczając możliwy termin realizacji świadczenia lub wskazując na inną formę realizacji określonych w ustawie uprawnień.
